Cada proyecto comienza escuchando tus necesidades. Analizamos tu idea, el tipo de negocio, la normativa aplicable y las posibilidades técnicas para transformarlo en un diseño funcional, atractivo y eficiente.
Nuestro equipo desarrolla planos, renders y modelos 3D que te permiten visualizar el resultado final antes de iniciar la fabricación.
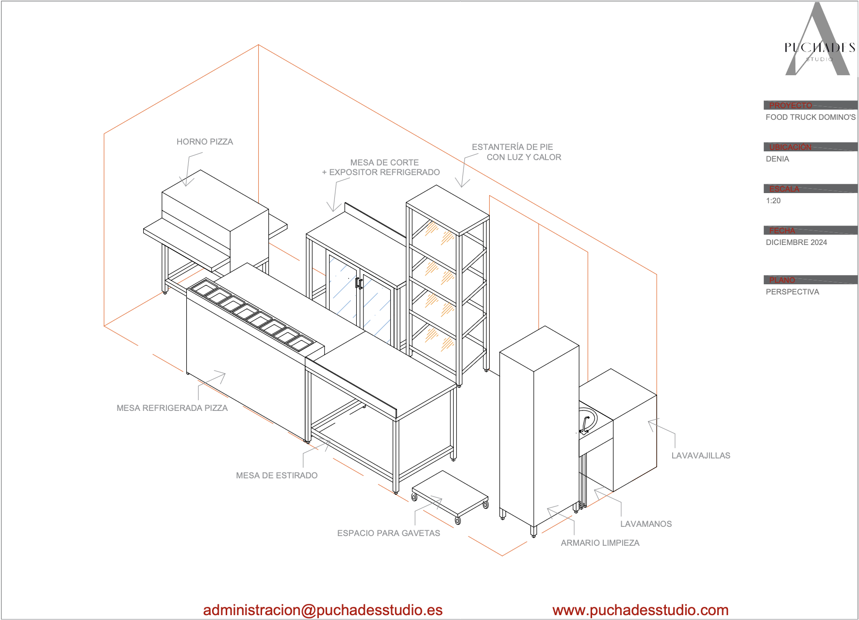
Una vez aprobado el diseño, realizamos toda la planificación estructural, instalaciones y distribución interior. Optimizamos cada espacio para garantizar ergonomía, seguridad y un flujo de trabajo perfecto.
Trabajamos con materiales de alta calidad y procesos certificados para asegurar durabilidad y cumplimiento de requisitos técnicos y sanitarios.
Damos vida a tu foodtruck en nuestro taller mediante procesos precisos y artesanales.
Estructura, aislamiento, mobiliario, equipamiento profesional, instalaciones eléctricas y de gas… todo se realiza con control exhaustivo en cada fase para garantizar un acabado impecable.
Iniciamos con estructuras de acero reforzado, diseñadas a medida para soportar el equipo pesado y garantizar la durabilidad en ruta
Instalamos campanas de extracción y equipos de acero inoxidable de alta gama, optimizando cada centímetro para un flujo de trabajo rápido
Carrocería pulida y cierres herméticos. Cuidamos la estética exterior tanto como la funcionalidad interna
El resultado final: una unidad móvil impactante, personalizada con tu marca y lista para conquistar las calles






